
Da oltre 35 anni trasmettiamo passione nel nostro lavoro stando al vostro fianco!
Seguici sui social
Categorie
Recapiti
C.so Matteotti 73/A
28047 Oleggio (NO)
Lun - Ven 9.00 - 12.30 || 14.30 - 18.30
Sab 9.00 - 12.30
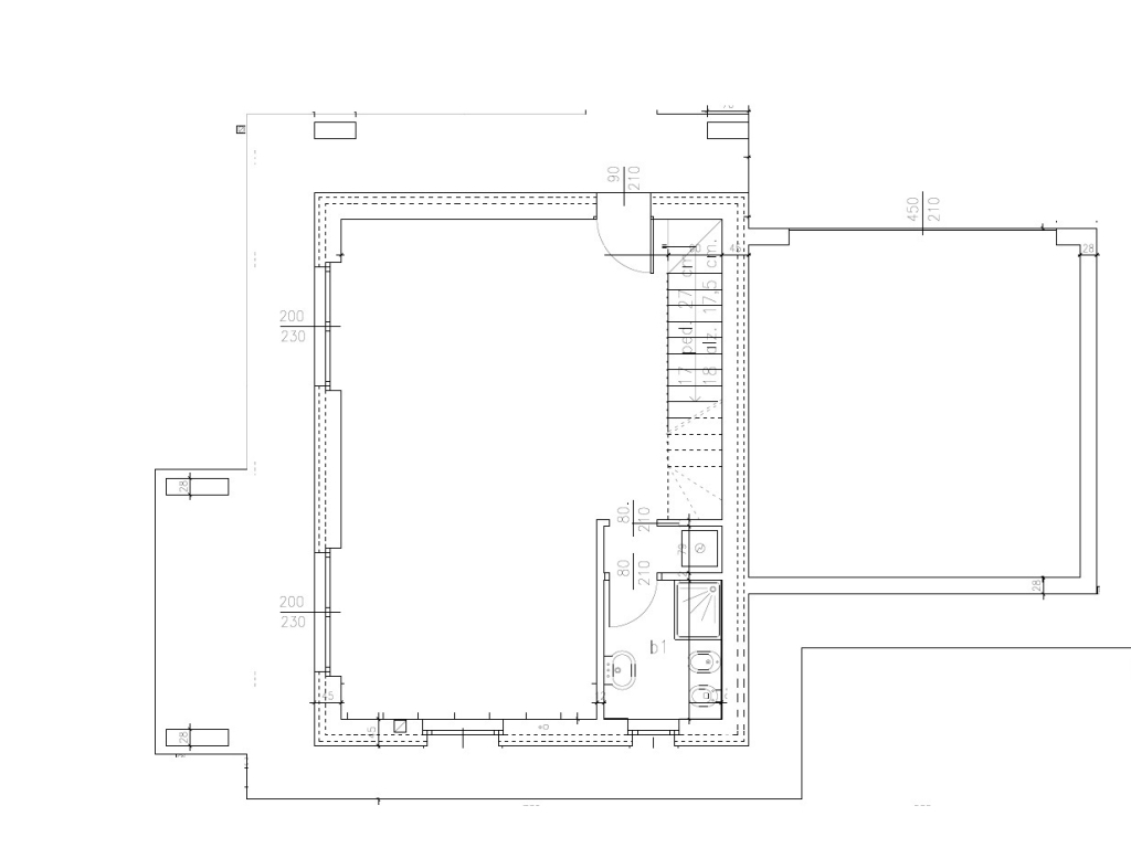
Villa in vendita a Oleggio
Prezzo: €330.000
Superficie commerciale: 161 m²
Locali: 4 | Bagni: 2 | Giardino privato | Box doppio
Descrizione:
Villa indipendente di nuova costruzione, con consegna prevista entro circa 5 mesi, disposta su due livelli e costruita su un lotto di circa 560 m².
Al piano terra si trovano: Ampio soggiorno/pranzo di circa 47 m² con uscita sul portico coperto e sul giardino, Disimpegno, bagno finestrato, ripostiglio, Accesso diretto al box doppio
Al piano primo: Camera matrimoniale con terrazzo coperto, Due camere da letto aggiuntive, Secondo bagno finestrato, Ripostiglio/spazio multifunzione
L’immobile è libero su quattro lati, garantendo ottima luminosità e privacy.
Dotazioni principali:
- Superficie interna calpestabile: circa 150 m²
- Giardino privato su tre lati
- Box doppio incluso, con accesso diretto all’abitazione
- Posto auto scoperto aggiuntivo
- Riscaldamento autonomo con pompa di calore
- Predisposizione impianti di raffrescamento
- Classe energetica prevista: A o superiore
- Finiture personalizzabili secondo capitolato
Posizione: Situata in zona residenziale tranquilla, ben collegata e comoda a tutti i principali servizi: scuole, supermercati, aree verdi e mezzi di trasporto. Ideale per chi cerca una casa indipendente in un contesto silenzioso ma non isolato.
Perché sceglierla:
- Abitazione nuova, senza spese di ristrutturazione
- Ottima distribuzione degli spazi e ambienti luminosi
- Possibilità di personalizzare le finiture interne
- Giardino e terrazzi per godersi spazi all’aperto
- Box doppio e posto auto inclusi
Informazioni: è possibile contattarci per ricevere planimetrie, capitolato, dettagli sui materiali e fissare un sopralluogo in cantiere.

Da oltre 35 anni trasmettiamo passione nel nostro lavoro stando al vostro fianco!
C.so Matteotti 73/A
28047 Oleggio (NO)
Lun - Ven 9.00 - 12.30 || 14.30 - 18.30
Sab 9.00 - 12.30